El diseño eléctrico: herramienta indispensable en la ingeniería moderna
El diseño eléctrico es una herramienta indispensable con la que debe contar todo ingeniero que pretenda trabajar con cualquier forma de aprovechamiento o producción de la energía eléctrica.
Con la evolución de la automatización, vemos que ya, en casi cualquier ámbito de la vida cotidiana, hay sistemas que usan electricidad. Esto genera la necesidad de conocer a fondo los elementos del diseño eléctrico para poner en marcha, manipular, reparar o evaluar dichos sistemas.
¿Qué es el diseño eléctrico?
Se conoce como diseño eléctrico al proceso conjunto de planificar, simular, implementar y poner en funcionamiento equipos alimentados con energía eléctrica. Estos sistemas son, por lo general, los siguientes:
- Sistemas de iluminación inteligentes.
- Instalaciones eléctricas residenciales, industriales o comerciales.
- El audio y vídeo para eventos.
- Producción y distribución de energía eléctrica.
- Otros.
¿Qué partes componen al diseño eléctrico?
Un buen diseño eléctrico debe incluir los siguientes elementos. Cada uno de ellos ayuda a implementarlo y mantenerlo en el futuro.
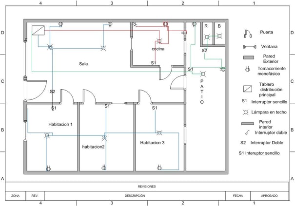
- Plano eléctrico. En este documento, se especifican las conexiones eléctricas de todo el lugar donde se lleve a cabo la implementación. Es importante considerar que este plano debe estar normalizado y cumplir con lo establecido en la normatividad vigente. La figura 1 muestra un ejemplo de los elementos básicos que no deben faltar en un plano eléctrico.
- Estudio de carga. Este documento establece la cantidad de potencia que cada elemento es capaz tanto de consumir como de proporcionar.
- Memoria técnica. En este documento, quedan plasmados los materiales que se han de utilizar, las especificaciones de construcción y un presupuesto que indica los costes de cada elemento que integrará el sistema a implementar.
Fuente: delektric.cl
Junto con estos documentos, será indispensable contar con un acta expedida por la autoridad competente que exprese la aprobación del proyecto.
¿Cómo efectuar el diseño eléctrico de una forma eficiente?
Para poder realizar un diseño electrónico adecuado y profesional, vale la pena contemplar los siguientes pasos:
-
Realizar un estudio de factibilidad. Esto consiste en delimitar si lo que se pretende instalar o implementar es posible de acuerdo con las características del lugar en cuestión.
- Hacer un estudio de carga. Esta segunda etapa consiste en calcular la cantidad de potencia que cada elemento ha de consumir. Después de haber decidido esto, se suman las potencias y se multiplica el resultado por un factor de seguridad de 1,5. La figura 2 muestra el ejemplo de un estudio de carga convencional.
- Diseñar las conexiones. Este proceso es fundamental para lograr la optimización del cableado. El encargado de esta etapa deberá efectuar todas las conexiones o empalmes eléctricos pertinentes con la menor cantidad de material posible. Después, esto se irá dibujando en el plano correspondiente.
-
Puesta en marcha. En esta última etapa, el supervisor deberá constatar que se sigue al pie de la letra lo estipulado en los planos.
Fuente: portalelectricos.com
¿Qué software puede utilizarse para el diseño eléctrico?
Gracias al avance de la tecnología de computación, es posible hoy día acceder a una gran cantidad de herramientas que facilitan la labor del diseñador eléctrico. Podemos listar las siguientes:
Conviene, al menos, especializarse en el uso de un par de estos programas, pues agilizan el proceso de diseñar considerablemente. Aquí, en Structuralia, somos conscientes de las necesidades actuales no solo en el diseño eléctrico, sino en varias ramas donde se necesita la profesionalización de nuestros estudiantes.
La plataforma cuenta con una gran cantidad de cursos de especialización, masters y actualizaciones para diversos sectores de la ingeniería, desarrollo sustentable y otras áreas tecnológicas con el respaldo de la Universidad Católica San Antonio de Murcia y la Universidad Da Vinci.
