Estribos en puentes: tipología y materiales

La tipología de los estribos de los puentes viene determinada por el tipo del tablero y por la capacidad portante del terreno de sustentación. Además, en la elección de uno u otro tipo también influyen otros detalles como las características de la vía inferior, los niveles de tráfico (ferroviario o vial), la existencia del cauce de un río o una vaguada, la altura del terraplén de acceso o el perfil longitudinal del terreno. En este post recogemos una breve descripción de las distintas tipologías en que pueden dividirse los estribos en la construcción en base a estos parámetros.

Definición de estribos y sus funciones 

El estribo de un puente es su elemento estructural en el que el tablero se apoya en ambos extremos. El estribo a su vez, se cimenta sobre el terreno y cumple las siguientes funciones:

  • Servir de elemento de transición entre la vía y el tablero

  • Colaborar junto con las pilas en la sustentación del tablero

  • Sujetar el terreno circundante impidiendo que éste último invada por derrame la zona de sombra del puente

Proteger a las tierras próximas al estribo de posibles efectos adversos por erosión del viento y/o el agua

Fases del proceso constructivo

El proceso constructivo depende de la tipología del estribo. En líneas generales las fases son:

  • Replanteo
  • Excavación previa de cimientos
  • Hormigón de nivelación del cimiento
  • Encofrado, ferrallado y hormigonado del cimiento
  • Encofrado, ferrallado y hormigonado de alzados o colocación de elementos prefabricados
  • Impermeabilización y drenaje del trasdós
  • Relleno y compactación de tierras del trasdós
  • Ejecución de losa de transición

Estribos cerrados

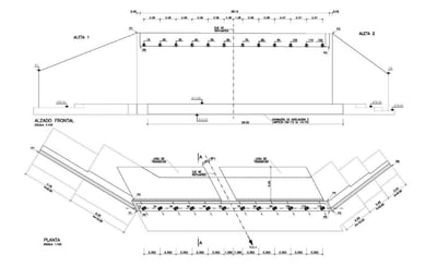
Los estribos cerrados son los más comunes en puentes. Estos constan de un muro frontal sobre el que se apoya el tablero, que sirve también para contener las tierras. Se cimenta en el terreno natural y no sobre el terraplén, lo que permite disminuir el asiento que puede sufrir a largo plazo, que repercutiría en el tablero si éste fuese hiperestático.

estribos de puentes: estribos cerrados

Alzado y planta de un estribo cerrado.

Este tipo de estribo permite no verter tierras por delante de él si es necesario evitar invadir la vía inferior. Si existen edificaciones cercanas que no se quieran afectar se puede prolongar el estribo lateralmente mediante un muro en vuelta, que puede prolongarse todo lo que sea necesario. Estos muros en vuelta pueden disponerse formando un ángulo de 90º con el estribo, siguiendo la disposición del vial si el estribo es desviado, o formando un ángulo (en general de 30º) siguiendo el vertido del terraplén.

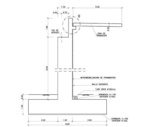
sección de estribo de puente cerrado

Sección tipo de un estribo cerrado.

Estribos abiertos en puente

Estos estribos de construcción se realizan para alturas superiores a los 5 metros, porque el espesor del dintel es importante y la dificultad constructiva es elevada. Los estribos abiertos siempre se completan con aletas en vuelta para que las tierras no invadan la zona de apoyos.

ESTRIBO3

Alzado frontal y sección tipo de un estribo abierto.

Cuando es posible es vertido de tierras por delante del muro frontal, este puede ser aligerado mediante la disposición de un dintel o cargadero donde apoya el tablero, el cual se apoya a su vez en unas pantallas que transmiten las cargas a la cimentación, y sustituyen en parte al muro frontal con el consiguiente ahorro de material.

Sillas cargadero

Otro tipo habitual de estribos cuando está permitido el derrame frontal es el de vigas durmientes o sillas cargadero sobre los terraplenes de acceso. Se emplean fundamentalmente en puentes con tablero isostático debido a que sufren descensos importantes.

tipos de estribos: silla cargadero

Alzado frontal y sección tipo de una silla cargadero.

También pueden utilizarse para estructuras hiperestáticas cuando se colocan pilotes que se ejecutan una vez realizado el cargadero. Para ejecutar un estribo de este tipo es necesario respetar una distancia mínima al borde del terraplén, en general no menor de 2.5 metros. Se debe realizar una adecuada compactación del terraplén para evitar que los asientos diferidos en el tiempo que se produzcan no afecten a la funcionalidad de la estructura.

Estribo de tierra armada

Cuando las tierras no pueden derramar por delante del alzado del estribo y el terreno tiene una tensión admisible muy baja, es muy deformable o no se pueden realizar excavaciones, se recurre a estribos de suelo reforzado o de tierra armada.

Este consiste en armar el material del terraplén con unas pletinas o “armaduras”, que pueden ser galvanizadas o de fibra de carbono colocadas normalmente al paramento frontal del estribo. Estas pletinas absorben por rozamiento con el terreno los empujes horizontales.

estribo de tierra armada

Alzado frontal de un estribo del tipo tierra armada.

 

El muro se complementa con las “escamas” de hormigón de forma cruciforme, a las que se conectan las armaduras. En la coronación del muro se pueden disponer o bien cargaderos que reciben las cargas del tablero en forma directa o si se trata de estructuras hiperestáticas. Lo más común es independizar el apoyo del tablero del muro de tierra armada colocando una pila-estribo por delante del mismo. La ejecución debe ser muy cuidadosa, para evitar las patologías que afectan a estos muros: descensos importantes, abombamiento del paramento exterior, etc.

 

Artículos relacionados

Solicitar información

Si necesitas ayuda