Es un problema común en el mundo de la ingeniería y de la arquitectura el que refiere a la necesidad de calcular si una determinada estructura fabricada es capaz de soportar un sistema de fuerzas dado. He aquí donde entran en juego los llamados módulos de sección. Y es que este término hace referencia a una magnitud geométrica de capital importancia a la hora de diseñar y construir estructuras, pues de ella depende que, en efecto, la estructura se mantenga en pie o no al hacer frente a resistencias concretas.
¿Qué son los módulos de sección?
Si bien en la introducción ya se han vislumbrado los puntos críticos relativos a este concepto, lo cierto es que todavía se puede profundizar mucho más en él. Así, técnicamente puede definirse como la resistencia de un área con respecto la resistencia de un área con respecto a un eje, calculada como la relación entre el momento de inercia y la distancia mayor tomando el eje de referencia; habitualmente aparece expresada en cm³, mm³ o in³.
Siendo esto así, se trata de una magnitud que conjuga elementos tan importantes como la resistencia máxima a la tensión o la tenacidad, como aparece representado en la siguiente imagen, extraída de la importante revista de divulgación científica Naukas:

Fuente: https://naukas.com/fx/uploads/2013/03/micro02.jpg
Cómo se calculan los módulos de sección
El cálculo de esta magnitud se lleva a cabo a partir de la forma y de la dimensión de la sección transversal, dando lugar a una representación de la relación existente entre la máxima tensión sobre ella y la cantidad de esfuerzo aplicado.
Como se puede ver, la forma y dimensión de la sección tiene importancia en cada caso particular, por lo que la forma de calcular los módulos dependerá, en gran medida, de tales magnitudes. Por esa razón puede decirse que los módulos de sección son múltiples y sus cálculos también, pues puede hablarse de, entre otras, las siguientes secciones:
- Sección cuadrada o rectangular
- Sección circular y elíptica
- Sección doble T
- Sección maciza o hueca
A modo de ejemplo, podemos decir que el módulo de resistencia de una sección rectangular maciza se calcula multiplicando la base al cuadrado por la altura y dividiéndolo entre seis.

Fuente:https://wikimedia.org/api/rest_v1/media/math/render/svg/40969f6432150373a8f62312ea8176c13ed46b55
Aplicaciones prácticas de los módulos de sección en la construcción
Como puede encontrarse en numerosos trabajos académicos como este extraído de la Universidad Politécnica de Madrid, las aplicaciones prácticas de la magnitud que aquí estamos tratando son muchas, especialmente en el mundo de la construcción. Y es que conocer cuánta tensión es capaz de soportar una estructura es un punto esencial en todos y cada uno de los proyectos de ingeniería y arquitectura.
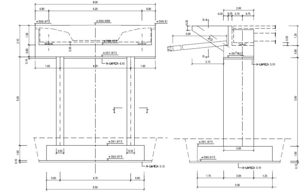
Un ejemplo práctico de su importancia: la construcción de estribos de puentes
Si bien se ha referido, en general, a la aplicación de esta magnitud al mundo de la construcción, hay un sector en el que esta necesidad se hace imperiosa: la construcción de estribos de puentes.
Y es que, tal y como se refleja en este artículo del blog, son piezas esenciales en todo puente cuyo diseño cuidado es fundamental para el correcto desarrollo de sus funciones.

(Representación del diseño de estribos de puentes realizado por el catedrático de la UPV, Víctor Yepes)
En conclusión, conocer qué son los módulos de sección y cómo se calculan es de importancia capital en el ámbito de la construcción. Por ese motivo, desde Structuralia se ofrecen numerosos másteres cuya formación será esencial en todo aquel que desee llegar a ser un profesional especializado. Uno de los másteres más estrechamente relacionados con lo dicho y que cuenta con gran renombre y aplicación práctica es el Máster en Materiales de Construcción y Control de Calidad en Obra, por lo que informarse al respecto siempre será una decisión acertada.